Ismertető
Szigetcsép új építésű részén, a Ráckevei Duna ág közelében, zöldövezetben 2 lakásos társasházként bejegyzett, csak a garázzsal szomszédos ikerházi lakásokat kínálok 555 m2 és 776 m2-es telkeken!
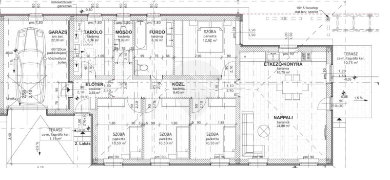
A ház hasznos, fűtött alapterülete 100 m2, nappali 4 hálószoba, duplakomfort, padlófűtés gáz cirkóval.
Távirányítással működő garázsajtó.
Az első ház ára 91,9 MFt; a hátsó házé 91,9 M Ft. Az egyik első ház plusz tartozéka és különlegessége a magas SZALETLI, amely lehet autóbeálló vagy akár fedett pihenőhely is
Az ingatlan egy csendes részen található, a település központjától autóval 3 percre, de gyalogosan is kb. 10 percre, ahol iskola, óvoda, bolt megtalálható, valamint könnyen elérhető a tömegközlekedés, Volán busz és a Ráckevei HÉV is.
CSOK PLUSZ is igénybe vehető! Így a ház ideális választás többgyermekes családok számára, akik csendes, nyugodt környezetben szeretnének élni.
Ne hagyja ki ezt a remek lehetőséget, vegye fel velem a kapcsolatot! Kérdéseire szívesen válaszolok, VÉGIG VEZETEM A FOLYAMATOKON.
Telefonhívásával, üzenetével hozzájárul adatainak a szükséges mértékű kezeléséhez. Várom jelentkezését!
Részletek
-
Építés éve:
2024 -
Szobák száma:
5 -
Állapot:
új -
Fűtés:
cirkó -
Épület típusa:
családiház -
Terasz:
11 m2 -
Kilátás:
kertre néz -
Tájolás:
DK -
Telekméret:
555 m2 -
Övezet:
nincs adat -
Tetőtér:
nincs adat
